PALAZZO SEDE DEL CONSIGLIO REGIONALE DELLA SARDEGNA
- Committenza: Pubblico
- Luogo: Cagliari
- Anno: In corso…
- RTP: Leonardo Consorzio Europeo per l’ingegneria e l’architettura, Tecnolav s.r.l., Ingegneri Riuniti S.p.A, Etacons S.r.l., ECSD S.r.l., PROJECT PARTNERS LDT CONSULTING ENGINEERS, dott.ssa Archeologa Cristina Cilla.
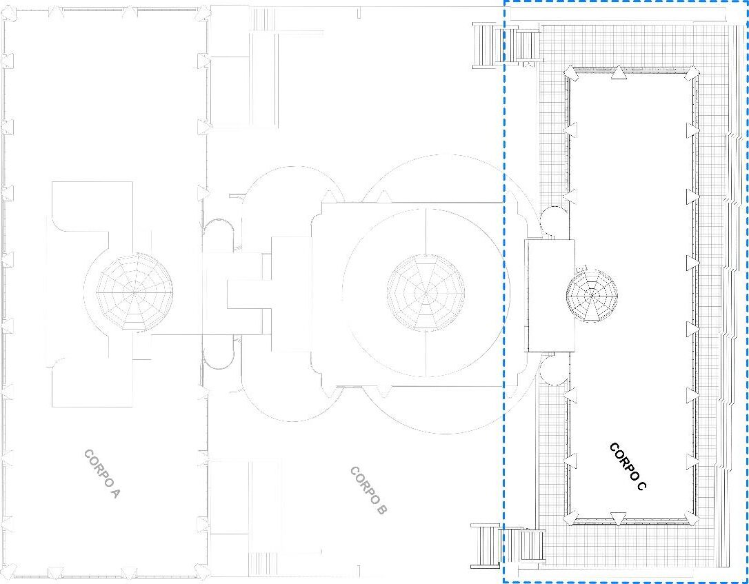
Il Progetto in fase di PFTE prevede dei lavori sugli interni del Corpo C del palazzo sede del Consiglio Regionale della Sardegna. Questo Corpo si affaccia sulla Via Cavour del quartiere di Marina a Cagliari.
I lavori di progettazione sono partiti da un rilievo totale con l’utilizzo di una videocamera 360° cosi da ottenere una documentazione fotografica e video completa. Inoltre è stato utilizzato uno strumento laser scanner 3D tale da ottenere una nuvola di punti misurabile dello stato reale dell’immobile.
Le scelte progettuali sono state effettuate tenendo presente il quadro esigenziale nel suo complesso e degli interventi effettivamente realizzabili. Le scelte sono state influenzate anche da considerazioni generali sulla struttura dell’edificio che presenta delle inevitabili carenze dovute al trascorrere del tempo e all’inevitabile invecchiamento delle varie componenti. Questo ha condotto a individuare delle priorità di intervento che, anche se parziali o settoriali rispetto all’obiettivo globale, risultano congruenti ed efficaci rispetto alla meta finale.


Gli interventi si concentrano principalmente sull’adeguamento alla normativa antincendio, l’efficientamento energetico dell’Immobile, l’abbattimento delle barriere architettoniche e alcune opere di modifiche al layout interno.
Nello specifico si prevedono: la sostituzione delle porte attuali con altre di tipo REI, dei placcaggi a parete e soffitto/ controsoffitti; la realizzazione di aree compartimentate e di un nuovo impianto per lo spegnimento automatico ad aerosol e impianto meccanico di estrazione dei fumi; nuovo impianto di diffusione sonora EVAC , rifacimento integrale della rete dati, efficientamento energetico e Relamping degli impianti elettrici e illuminazione ordinaria e d’emergenza.

